BỘ HỘP LỰC FREE UP P2US Hafele 372.33.611 hàng chính hãng được Hafele Việt Nam nhập khẩu và phân phối chính hãng từ nhà cung cấp.
Đặc điểm nổi bật
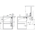
- Lý tưởng cho tủ có mặt trước ở trên
- Thiết kế hiện đại nhờ các đường nét rõ ràng
- Khả năng mở dễ dàng, chức năng dừng ở nhiều vị trí và cơ chế đóng mở giảm chấn cho cảm giác vận hành độc đáo
- Xử lý hiệu quả và tiết kiệm thời gian nhờ các chốt, vít Euro gắn sẵn và hệ thống cố định nhanh chóng cho mặt trước và thanh ngang, và điều chỉnh mặt trước lệch tâm
Thông số kỹ thuật
- Lĩnh vực ứng dụng: Dành cho cửa tủ 1 cánh được làm bằng gỗ, kính hoặc có khung nhôm
- Vật liệu: Phụ kiện: Nhựa, thép
- Màu sắc/lớp hoàn thiện: Phụ kiện: Mạ niken
- Chất liệu nắp: Gỗ, Kính, Khung nhôm
- Loại cánh tủ: một phần
- Bộ phận điều chỉnh:
- Điều chỉnh chiều cao ±1,5 mm
- Điều chỉnh bên ±1,5 mm
- Góc nghiêng ±1,5°
- Nắm giữ lực




