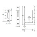
Thông tin sản phẩm của Thân Khóa Cho Cửa Trượt Hafele 911.26.292
- Mã sản phẩm: 911-26-413
 - Loại sản phẩm: Phụ kiện cửa
 - Danh mục sản phẩm: Phụ kiện cửa Hafele
 - Thương hiệu: Hafele
 - Bảo hành: Chính hãng
 - Xuất xứ: Chính hãng
 
Tính Năng của Thân Khóa Cho Cửa Trượt Hafele 911.26.292
- Kiểu loại: Thân khóa chỉ có chốt chết
 - Công dụng: Dùng cho dạng trượt
 - Dùng cho cửa gỗ
 - Chốt chết được điều khiển bằng ruột khoá
 - Chốt chết xoay 2 vòng
 - Chốt chết làm từ inox
 
Thông số kỹ thuật của Thân Khóa Cho Cửa Trượt Hafele 911.26.292
- Chất liệu: thép mạ nikel
 - Màu hoàn hiện: Màu đen
 - Mặt thân khóa inox 304
 - Mặt thân khóa vuông kích thước 22 mm
 - Mặt bas khóa vuông kích thước 24 mm
 - Khoảng cách từ cạnh cửa đến tâm lỗ ruột khoá BS: 40 mm
 - Trộn bộ gồm: 1 thân khoá + 1 bas thân khoá + 1 bas hộp nhựa + Vít
 

            
              
              
                    
                    
                    
                    
                    
                    
                    
                    

