Thông tin sản phẩm của Thân Khóa Chốt Chết Hafele 911.22.490
- Mã sản phẩm: 911.22.490
- Loại sản phẩm: Phụ kiện cửa
- Danh mục sản phẩm: Phụ kiện cửa Hafele
- Thương hiệu: Hafele
- Bảo hành: Chính hãng
- Xuất xứ: Chính hãng
Tính Năng của Thân Khóa Chốt Chết Hafele 911.22.490:
- Kiểu loại: Thân khóa chỉ có chốt chết
- Công dụng: Dùng cho cửa đi, cửa thông phòng, cửa phòng tắm
- Dùng cho cửa gỗ
- Chốt chết được điều khiển bằng ruột khoá
- Chốt chết xoay 2 vòng
- Chốt chết làm từ inox
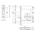
Thông số kỹ thuật của Thân Khóa Chốt Chết Hafele 911.22.490
- Chất liệu: thép mạ nikel
- Mặt thân khóa inox 304
- Mặt thân khóa vuông kích thước 24 mm
- Khoảng cách từ cạnh cửa đến tâm lỗ ruột khoá BS: 55 mm
- Trộn bộ gồm: 1 thân khoá + 1 bas thân khoá + 1 bas hộp nhựa + Vít




